Онлайн книга «Странный дом 2»
|
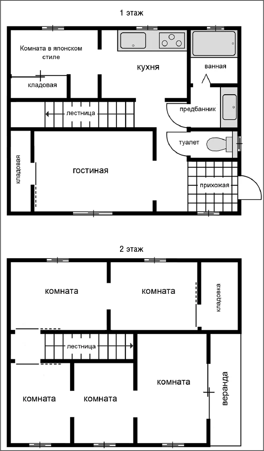
Автор:Там было тяжело работать? Иимура:Не то слово. От комнаты бабки до кухни все было залито кровью, так что пола не видно, пришлось даже менять половицы – особенно утомительное занятие. Когда после долгого рабочего дня лотим тело, это дело обычное, но в тот раз у меня и душа разболелась. Вы же знаете, что одной из жертв был ребенок? Автор:Да, младший брат Цухары. Иимура:У входа на кухню была маленькая лужица крови. Кровь мальчика. Даже смотреть на нее было тяжело. У нас с бывшей женой ведь тоже был ребенок. Автор:Простите, я не знал… Иимура:Ну ладно, не будем о грустном. Значит, вам нужна планировка дома Цухара. Я ее принес. Как благодарность за эдамамэ должно сгодиться, думаю. Господин Иимура вынул из кармана сложенную бумажку, на которой был распечатан план дома. Иимура:Это и есть дом семейства Цухара. Автор:Но как вам удалось раздобыть чертеж? Иимура:Такого добра в интернете навалом, подобрал подходящий да и распечатал. Странно. Я прошерстил много разных сайтов, но найти план дома семьи Цухара мне не удалось. Но раз уж так говорит человек, который своими глазами видел жилище изнутри, наверное, это достоверный верный план. Возможно, я не слишком старательно искал. Иимура:В любом случае ужасный домишко. Проживи я в таком столько лет, тоже с ума сошел бы – там невозможно жить. Автор:Невозможно жить… В каком смысле? Иимура:Так вы посмотрите на планировку! Не видите, что ли? Автор:По-моему, самый обычный дом… Иимура:Тогда попробуйте поставить себя на место его жильцов. Вот представьте, что вы привыкли есть в гостиной на первом этаже, но при этом постоянно чувствуете запах, который напрочь отбивает аппетит. Понимаете откуда он? Посмотрите, кухня и ванная, то есть «мокрые» зоны, где используется вода, расположены в северной части дома. Поэтому туда практически не попадает солнечный свет. Так что зимой там всегда сыро, а летом – душно. Запахи оттуда и из туалета через коридор доходят до гостиной, понимаете. Двери нет, соответственно, и от зловония не скрыться. ![]() Автор:Интересно, почему же в гостиной не было двери? Иимура:Поскупились, видать. Хотели хоть немного да сэкономить на строительных работах. Автор:Теперь понятно. Иимура:Но недостаток отсутствия двери заключается не только в этом. Давайте продолжим фантазировать: сидите вы обедаете, и вдруг в дверь стучится разносчик газет, чтобы взять с вас деньги за подписку на следующий месяц, или какой-нибудь религиозный зазывала. Как вам такое? Они могут разглядеть и еду, которая у вас на столе, и лица членов семьи. Все на виду. Была бы хоть на кухне дверь, и то хорошо, но из-за лестницы места в этой части дома немного, так что, по всей видимости, ее не смогли установить. ![]() Когда пытаешься уместить дом на маленьком участке, такие проблемы неизбежны. Попросту говоря, в японских домах часто встречаются неудобные планировки.Но ладно, если проектировщик с мозгами, что-то путное еще может получиться, только вот автор этого плана явно полный бездарь. ![]() Иимура:Например, в этой зоне сосредоточены входы и на кухню, и в предбанник, и в туалет. Члены семьи наверняка часто сталкивались там друг с другом и ссорились на пустом месте. Автор:Действительно, если разобраться, там и правда неудобно жить… Иимура:Вот видете. Со вторым этажом все еще хуже. При такой площади лучше всего было сделать три-четыре комнаты, а они зачем-то уместили аж пять, и места для коридора не осталось. Из-за того, что коридора нет, в глубь этажа можно пройти только через комнаты. К тому же ни в одном из дверных проемов не установлены двери. Короче, там невозможно побыть наедине с собой. |
![Иллюстрация к книге — Странный дом 2 [i_020.webp] Иллюстрация к книге — Странный дом 2 [i_020.webp]](img/book_covers/117/117523/i_020.webp)
![Иллюстрация к книге — Странный дом 2 [i_021.webp] Иллюстрация к книге — Странный дом 2 [i_021.webp]](img/book_covers/117/117523/i_021.webp)
![Иллюстрация к книге — Странный дом 2 [i_022.webp] Иллюстрация к книге — Странный дом 2 [i_022.webp]](img/book_covers/117/117523/i_022.webp)