Книга Странный дом 2, страница 21 – Укэцу

Авторы: А Б В Г Д Е Ж З И Й К Л М Н О П Р С Т У Ф Х Ч Ш Ы Э Ю Я
Книги: А Б В Г Д Е Ж З И Й К Л М Н О П Р С Т У Ф Х Ц Ч Ш Щ Ы Э Ю Я
Бесплатная онлайн библиотека LoveRead.me

Онлайн книга «Странный дом 2»

📃 Cтраница 21

Однако как только я дошла до ворот, от моего чудесного настроения не осталось и следа. Я, конечно, предполагала, что дом будет большой, но на такой размах мое скудное воображение не было способно. Огромный дом: в нем с легкостью могло бы разместиться человек сто. Во дворе – не просто садик – образцовый английский сад, прямо как в кино. Дворец, не иначе… В ту секунду ко мне во всей полноте пришло осознание, что между мной и Мицуко пролегает непреодолимая пропасть.

Я нажала на звонок, и навстречу вышел элегантный мужчина в белой рубашке и галстуке. Дрожащим от волнения голоса я объяснила, зачем пришла. «Мы ждали вас. Юная госпожа сейчас в комнате на втором этаже, позвольте проводить», – приветливо ответил он мне и проводил, словно почетного гостя. «Это, наверное, дворецкий», – проскользнуло у меня в голове. Наличие прислуги должно скорее удивлять, но мне тогда это показалось даже естественным. Наоборот, было бы странно, не окажись в таком роскошном доме дворецкого…

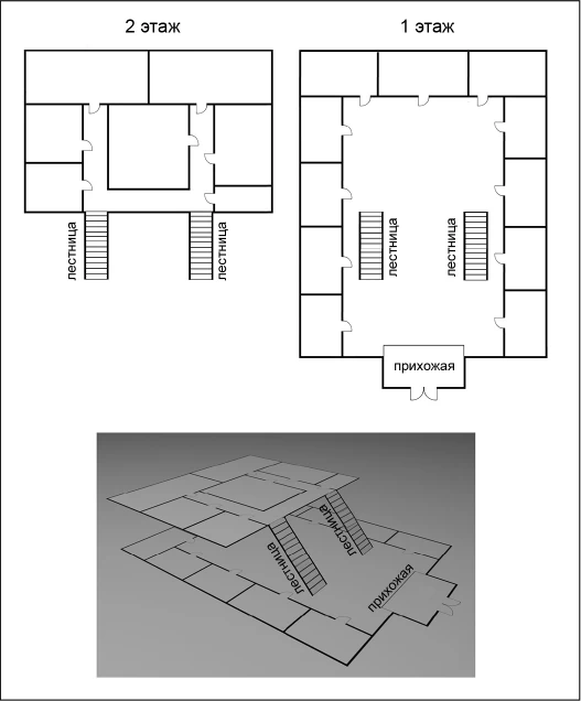
Госпожа Хаясака набросала в своем блокноте планировку.

Хаясака:По обе стороны от прихожей – по лестнице. Дворецкий объяснил мне, что на первом этаже расположены комнаты для гостей и персонала, а также кухня, а сама семья живет на втором этаже.

Автор:Под «семьей» вы имеете в виду Мицуко и ее родителей?

Иллюстрация к книге — Странный дом 2 [i_048.webp]

Хаясака:Нет, родители из-за работы жили в другом месте где-то далеко. На тот момент с Мицуко была бабушка. Я слышала, этот дом построили специально для них.

Автор:Роскошный дом для двоих человек? Поразительно.

Хаясака:Его спроектировал отец Мицуко. Я уже упоминала, что он возглавлял строительную компанию. Помню, как простодушно умилялась и думала: «Папа – глава компании, вот и построил дом для дочки…»

Сейчас-то понимаю, что такая роскошь была возможна, только потому что у них имелся крупный семейный бизнес.

Поднявшись по лестнице, я увидела, что Мицуко уже ждет в коридоре. Мама научила меня, что, когда приходишь в гости к друзьям, нужно непременно поздороваться с членами их семьи, поэтому я первым делом попросила проводить меня к бабушке. Ее комната находилась в самом центре.

Хаясака:Открыв дверь, я почувствовала сладкий запах – похоже на благовония. Сама комната была полна разных интересных вещиц, на стенах висели картины. Бабушка сидела на стуле и читала книгу. Это была очень красивая моложавая женщина – я даже с трудом поверила, что у нее и в самом деле есть внучка. Одета она была в длинную юбку, полностью закрывавшую ноги, и кардиган с цветочным узором, на руках – белые перчатки.

Иллюстрация к книге — Странный дом 2 [i_049.webp]

Я словно смотрела на очаровательный портрет. Бабушка тепло улыбнулась и сказала мне: «Добро пожаловать!»

Поздоровавшись, мы пошли в комнату Мицуко. Она, конечно, не могла сравниться с бабушкиной, но меня, девочку из самой обычной семьи, потрясла и она. Сразу в глаза бросился огромный гардеробный шкаф в глубине комнаты. У нас дома тоже был шкаф для одежды, но он не шел ни в какое сравнение с этой роскошью. В общем, мы поели сладостей, поболтали – так прошло где-то два часа. Мицуко сказала, что сходит в туалет, и вышла из комнаты. Оставшись одна, я, как и любой небогатый подросток, принялась рассматривать вещи вокруг. Тут было все: и необычные игрушки, и заграничная косметика, но больше всего меня манил, конечно, гардероб.

Вход
Поиск по сайту
Ищем:
Календарь