Онлайн книга «Странный дом 2»
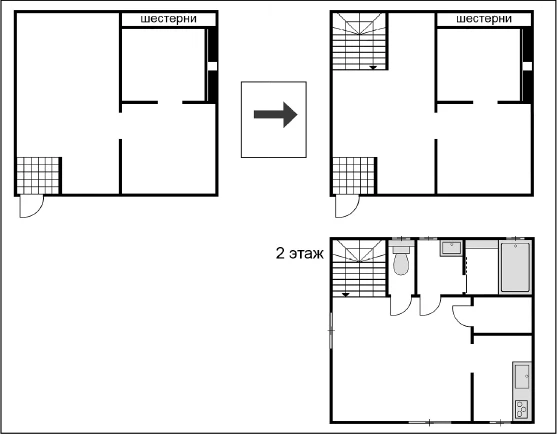
![]() ![]() Хираути:Действительно, я часто пропускал мимо ушей все то, что не мог понять… Но… неужели… тогда эта комната… До этого я спокойно относился к истории с женским трупом, ведь думал, что это дела давно минувших дней. Даже если все произошло где-то в этой округе, к настоящему это не имеет никакого отношения… так мне казалось. Но я ошибся. Место преступления совсем рядом. * * * Честно, мне перехотелось оставаться в этом доме – захотелось убежать отсюда как можно скорее. Однако последний автобус уже ушел, а гостиниц поблизости не было. Мы с господином Хираути проговорили на втором этаже всю ночь, не смыкая глаз. На следующее утро, когда мы вдвоем шли к автобусной остановке, из дома, который вчера показался мне пустым загородным особняком, вышла пожилая женщина. Мы поздоровались, и завязался разговор. Она рассказала, что много лет живет в этом районе одна. Что давно привыкла к режиму раннего подъема и отхода ко сну и уже к семи вечера выключает свет. Значит, именно поэтому в ее доме вчера не горел свет, когда мы проходили мимо. Поскольку женщина жила здесь много лет, я подумал, что она, возможно, что-то знает, и решил распросить ее. Женщина:Хм… Когда я переехала, дом уже стоял, так что не знаю, когда его построили. Но до того, как туда заселился господин Хираути, там никто не жил. Автор:То есть дом пустовал? Женщина:Думаю, да. Если бы кто-то жил, я бы хоть раз с ними пересеклась, увидела бы жильцов, не так ли? А ничего подобного не было. Но… может быть, я не знаю. Однажды там делали ремонт, может, кто-то и жил в этом доме незаметно для меня. Хираути:Ремонт? Женщина:Около двадцати лет назад сделали большой ремонт. Дом ведь двухэтажный? Когда я переехала, он был одноэтажным. После окончания ремонта появился второй этаж. Помню, я тогда подумала: «Ого, они сделали пристройку». ![]() Если женщина говорила правду, то получалось, что в доме господина Хираути изначально не было кухни, туалета и ванной. Жить в таком доме невозможно. «Во время показа риелтор сказал, что первый этаж – это склад, поэтому окон нет». То есть вначале это был просто «склад». Двадцать шесть лет назад кто-то сделал пристройку к мельнице, и получился склад. А спустя несколько лет над ним построили второй этаж и привратили в жилой дом. Но с какой целью? Чем больше я думал, тем запутаннее становилась загадка. Конец пятого материала Материал ⑥ Дом перерождения ![]() Август 1994 года Статья в ежемесячном журнале Когда-то в западной части префектуры Нагано, у подножия вулкана Якэдакэ, стояло огромное здание. Называлось оно «Дом перерождения» и служило штаб-квартирой религиозной секты «Орден перерождения». Организацию эту давно распустили, дом снесли, поэтому, чтобы узнать о нем подробнее, мне оставалось довериться архивным материалам. На сей раз я хочу представить вам единственную в своем роде статью-отчет о проникновении в «Дом перерождения», опубликованную в одном ежемесячном журнале в августе 1994 года. Говорят, изначально статья планировалась в двух частях, но после выпуска первой части поступила жалоба от некоей компании; в следующем номере журнала вместо второй части статьи опубликовали совершенно другую, а продолжение так и не вышло в свет. В связи с этим я могу ознакомить вас только с первой частью. К слову, иллюстрации, приведенные в тексте, взяты из оригинальной статьи. |
![Иллюстрация к книге — Странный дом 2 [i_068.webp] Иллюстрация к книге — Странный дом 2 [i_068.webp]](img/book_covers/117/117523/i_068.webp)
![Иллюстрация к книге — Странный дом 2 [i_069.webp] Иллюстрация к книге — Странный дом 2 [i_069.webp]](img/book_covers/117/117523/i_069.webp)
![Иллюстрация к книге — Странный дом 2 [i_070.webp] Иллюстрация к книге — Странный дом 2 [i_070.webp]](img/book_covers/117/117523/i_070.webp)
![Иллюстрация к книге — Странный дом 2 [i_071.webp] Иллюстрация к книге — Странный дом 2 [i_071.webp]](img/book_covers/117/117523/i_071.webp)