Онлайн книга «Странный дом»
|
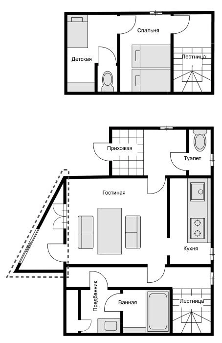
Я зашел в просторную гостиную. Повсюду были разбросаны книги: в основном по архитектуре, но детективов я тоже приметил немало. Автор:Вижу, твоя любовь к книгам не угасает. Курихара:Да уж, почти всю зарплату на них спускаю. Курихара поставил передо мной стакан холодного ячменного чая. Он сделал глубокий вдох, собираясь с мыслями, и положил на стол лист бумаги. Курихара:Это план, который ты мне вчера прислал. Вот уж не думал, что таких домов окажется два. Автор:Я тоже сначала глазам своим не поверил, когда его увидел. Курихара:Меня еще поразила эта Юдзуки Мияэ! Сумела отыскать нужный дом, не имея практически никаких зацепок. Автор:Да, похоже, она все силы бросила на поиски убийцы мужа… Кстати, госпожу Мияэ очень интересовала треугольная комната. Ты разобрался, зачем она нужна? Курихара:Форма у комнаты и правда необычная. Я пока мало что понял, но одно могу сказать точно: она появилась позже, когда дом был уже полностью построен. Второй этаж Первый этаж ![]() Треугольная комната Автор:Появилась позже? Как ты это узнал? Курихара:В стене между треугольной комнатой и гостиной есть окно. Конечно, «межкомнатные окна», то есть окна, которые устанавливают в стенах между смежными помещениями, – это не редкость. Но их никогда не делают двустворчатыми. Смотри, если это окно полностью распахнуть, из-за створок в один из углов комнаты будет просто не пройти. Автор:И правда. Они будут вплотную прилегать к противоположной стене. Курихара:Двустворчатые окна хороши в первую очередь тем, что позволяют легко проветривать помещение и увеличивают количество проникающего внутрь солнечного света. Но в данном случае окно блокирует внешняя стена треугольной комнаты, поэтому ни солнечный свет, ни свежий воздух в дом оно пропускать не будет. То есть это окно не выполняет своих функций. Зачем же его установили в таком месте? Мне кажется, все дело в том, что изначально оно выходило на улицу. ![]() Курихара прикрыл треугольную комнату на плане ладонью. Курихара:Изначально, когда дом только построили, этой комнаты не было. Взгляни на план. Без нее он выглядит совершенно обычным. Окно в гостиной смотрит на улицу, а дверь нужна, чтобы выйти в сад. Автор:То есть треугольную комнату построили на месте сада? Но зачем она понадобилась? Курихара:Этого я сказать не могу, но могу предположить, почему ее сделали треугольной. Автор:И почему? Курихара поставил на стол ноутбук. На экране высветился фрагмент спутниковой карты. Курихара:Ты ведь прислал еще и копию объявления о продаже этого дома. Я забил указанный там адрес в поисковик и… Вот, здесь. Курихара ткнул пальцем в незастроенный участок в форме трапеции, окруженный забором. Видимо, снимок был сделан после пожара. Курихара достал блокнот и схематично изобразил на нем участок и сам дом. ![]() ![]() Курихара:Итак, эта трапеция – участок. На нем стоял дом вот такой формы. На свободном треугольном участке земли, скорее всего, разбили сад. Веранды ведь не было, поэтому наверняка вещи после стирки развешивали сушиться именно в саду. Но потом по какой-то причинехозяевам потребовалось сделать пристройку. Тогда и появилась эта комната. А нестандартная форма объясняется тем, что ее нужно было вписать в незастроенный участок земли. Автор:Получается, им ничего не оставалось, кроме как сделать комнату треугольной? |
![Иллюстрация к книге — Странный дом [i_038.webp] Иллюстрация к книге — Странный дом [i_038.webp]](img/book_covers/117/117524/i_038.webp)
![Иллюстрация к книге — Странный дом [i_039.webp] Иллюстрация к книге — Странный дом [i_039.webp]](img/book_covers/117/117524/i_039.webp)
![Иллюстрация к книге — Странный дом [i_040.webp] Иллюстрация к книге — Странный дом [i_040.webp]](img/book_covers/117/117524/i_040.webp)
![Иллюстрация к книге — Странный дом [i_041.webp] Иллюстрация к книге — Странный дом [i_041.webp]](img/book_covers/117/117524/i_041.webp)