Книга Пять убийственных игр, страница 44 – Лэй Цзюнь

Авторы: А Б В Г Д Е Ж З И Й К Л М Н О П Р С Т У Ф Х Ч Ш Ы Э Ю Я
Книги: А Б В Г Д Е Ж З И Й К Л М Н О П Р С Т У Ф Х Ц Ч Ш Щ Ы Э Ю Я
Бесплатная онлайн библиотека LoveRead.me

Онлайн книга «Пять убийственных игр»

📃 Cтраница 44

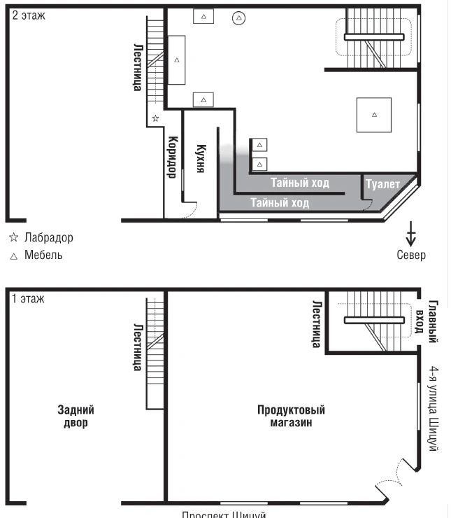
Я знал, что это продуктовый магазин, но не мог сказать, какие конкретно продукты там продавались, и не помнил, чтобы покупатели когда-нибудь заходили туда. Вероятно, там торговали скобяными изделиями, табаком и алкоголем. Каждый раз перед праздником Цинмин[36] или Фестивалем призраков[37] можно было наблюдать на ступеньках перед магазином выложенные пачки бумажных денег. В представлении ребенка магазины обычно делятся на два типа: первые – в которых продаются вкусности, вторые – в которые дети не ходят. Этот, вне всякого сомнения, относился к последним. Столовая перед бассейном была единственным местом, где мы с удовольствием готовы были потратить карманные деньги, но в школе покупка перекуса была запрещена. Ходили слухи, что коварный директор то и дело подстерегал поблизости и устраивал облавы на тех, кто не мог устоять перед искушением.

Но я отвлекся. Итак, тот продавец запер дверь и ретировался, даже не оглянувшись. Каждый день, как только часы пробивали пять, дяденька немедленно закрывал дверь и уходил. Он был даже более пунктуальным, чем звонари. Я невольно задавался вопросом, не намеренно ли он избегает чего-то – чего-то невообразимого…

Иллюстрация к книге — Пять убийственных игр [book-illustration-8.webp]

Рис. 2–3. План 1 и 2 этажей дома с привидениями

Да, это здание и было тем домом с привидениями, от которого мы одновременно балдели и приходили в ужас.

Монитор, зная дорогу, побежал в направлении, противоположном владельцу магазина, и отправился прямо в заросший сорняками задний двор на востоке. Но не прошло и секунды, как он снова появился на улице и помахал нам рукой, как бы призывая идти к нему.

Этого нельзя было не понять. Не говоря ни слова, я тут же грозно кинулся вперед. Монитор, вероятно, испугался и поспешно отпрыгнул, уступая мне дорогу. К тому моменту солнце уже переместилось на запад, и задний двор был полностью окутан тенью здания. Крутая примитивная металлическая лестница была прикрыта сорняками высотой по пояс, а ее вершина была соединена с длинным и узким коридором уличной верандой.

Из коридора высунулась голова. Лицо выглядело нечетким в темноте, но полоска красной зари в небе окрасила его волосы в цвет розового золота.

— Ой, пришел, – невозмутимо сказал парень.

Я уже собирался напасть, как вдруг подул сильный ветер, заставивший сорняки в саду зашелестеть. Ветер развевал мою пропитанную потом майку, заставив меня задрожать. По телу пробежала дрожь, как будто мне на голову вылили таз с ледяной водой, в мгновение ока погасивший мой гнев.

На смену гневу пришла необъяснимая тревога.

— Ты что здесь делаешь?! – резко прикрикнул Сундук. – Во время игры нельзя уходить из сада, не знаешь?

— Знаю, – все еще улыбался Лабрадор, – но вы же все равно прибежали сюда меня искать.

Я потерял дар речи. Обзор из коридора был узок, сад почти не просматривался, так что нечего было и говорить о перехватывании инициативы. Иначе говоря, этот парень серьезно нарушил правила, взамен добыв себе лишь одну возможность из двух. Спорить с ним по поводу этого нелогичного поведения было совершенно бесполезно.

Сундук, казалось, тоже это понимал. Поэтому он предложил, раз мы уже собрались здесь, отправиться на приключения в дом с привидениями. Предложение было тут же всеми единогласно одобрено. Ну, почти единогласно… Признаюсь, мне было не по себе. Но на кону было мое лицо, и, конечно, я не мог его потерять.

Вход
Поиск по сайту
Ищем:
Календарь