 
									Онлайн книга «Ацтеки, майя, инки. Великие царства древней Америки»
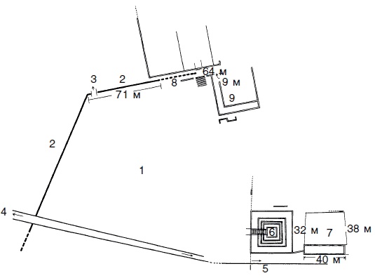
| ![Иллюстрация к книге — Ацтеки, майя, инки. Великие царства древней Америки [i_236.jpg] Иллюстрация к книге — Ацтеки, майя, инки. Великие царства древней Америки [i_236.jpg]](img/book_covers/053/53897/i_236.jpg) Рис. 150. Вилькасуаман. Этот город, самый значительный между Куско и Хаухой, расположенный непосредственно на царской дороге инков, считался у них «центром» их государства – т. е. расстояние отсюда до Чили было точно таким же, как и расстояние отсюда до Кито: 1 – площадь; 2 – стена, которая окружала площадь; 3 – дорога в Кунтисуйю (на северо-запад); 4 – дорога в Куско; 5 – дорога в Кито; 6 – храм Солнца; 7 – резиденция жрецов Солнца; 8 – Куриканча (Золотая ограда); 9 – резиденция Инки Уайна Капака Далее по царской дороге в 160 км к северу на высоте 3350 м расположен Вилькасуаман. Святилище Ястреба находится на высоком плато Вилькас над рекой Висчонго. Здесь и по сей день стоит каменная усеченная пирамида храма Солнца, единственная из тех тысяч построенных пирамид, которая уцелела. Хотя Вилькасуаман расположен более чем в трехстах километрах от Куско, в нем имеются все аспекты архитектуры инков. В нем проявляется поразительное единообразие городского планирования инков. Здесь есть огромная площадь («настолько большая, что может вместить пятьдесят тысяч человек», – написал Педро де Сьеса де Леон, который, очевидно, видел ее в те времена). С западной стороны она ограничивается храмом Солнца, с восточной – дворцом Инки; дом Дев Солнца занимал другой ее угол, а еще в другой ее части располагались царские склады. По обеим сторонам узких мощеных улиц стояли дома. На этой площади встречались три дороги, ведущие из различных частей империи. Храм Солнца (см. вклейку XL) и по сей день, как это было описано Сьеса де Леоном, «построен из превосходно подогнанных друг к другу камней; в нем есть два больших дверных проема (на противоположных сторонах) и две лестницы из тридцати трех ступеней, ведущие от них наверх… а на его усеченной вершине в 30 м над площадью… большое каменное сиденье, на котором восседал Правитель Инка и смотрел на танцы и праздники…». Архитектура инков была функциональной. Во всем государстве не было построек, обладавших для людей бесполезностью пирамид, которые не доставили Джулиану Хаксли «никакого эстетического наслаждения» [53] и которые он считал квинтэссенцией бросающегося в глаза расточительства. Еще севернее, почти в 500 км от последнего упомянутого города инков, на высоте 3800 м, находится малоизвестный Бонбон. Здесь, как и в Вилькасуамане, на большой площади встречались три магистральные дороги. Через реку Мантаро был переброшен подвесной мост, к которому вела дорога, проходившая через ряды совсем обычных (из плитняка, скрепленного необожженной глиной, с соломенной кровлей) домов, и эта улица выходила на огромную площадь в форме трапеции. В ее центре стоял храм Солнца; вдоль трех его сторон располагалось большое количество домов с остроконечными соломенными крышами. Здесь сходились имперские дороги, проходили мимо храма Солнца и уводили в просторы Анд. На той же самой дороге, которая пролегла между Куско и Кито, еще в 160 км севернее находится Уануко. Это был очень большой город. До сих пор можно увидеть очертания его квадратной площади, к которой ведут с четырех сторон каменные ступени. «В Уануко есть красивый королевский дворец, – писал Педро де Сьеса де Леон, – рядом с ним расположен храм Солнца, где служат множество дев и жрецов. Он был таким крупным центром во времена инков, что более тридцати тысяч индейцев помещались отдельно лишь для его обслуживания». Здания, в которых жили все эти люди, а также храмы можно увидеть и по сей день. И снова три магистральные дороги сходились на площади и расходились в различных направлениях. ![Иллюстрация к книге — Ацтеки, майя, инки. Великие царства древней Америки [i_237.jpg] Иллюстрация к книге — Ацтеки, майя, инки. Великие царства древней Америки [i_237.jpg]](img/book_covers/053/53897/i_237.jpg) Рис. 151. Бонбон или Пумпу, большой город у озера Хунин. Типичный пример городского планирования инков позднего периода: 1 – дорога из Куско; 2 – подвесной мост; 3 – река Мантаро; 4 — озеро Хунин; 5 – площадь; 6 – храм Солнца; 7 – жилые дома; 8 — дорога в Канта и на Тихоокеанское побережье; 9 – дорога в Ойон и Каллехон-де-Уайлас; 10 – дорога в Кито через Уануко Но парад архитектуры продолжается. Кому-то могут наскучить повторения. Кахамарка, расположенная в 320 км дальше на север (место, где был захвачен в плен последний Правитель Инка Атауальпа, где его держали ради выкупа и где его казнили), была еще одним центром инков, спланированным точно так же, как и все остальные. Расположенная на высоте около 2600 м над уровнем моря на полпути между Куско и Кито, Кахамарка представляла собой небольшой городок. И все же испанцы, которые впервые увидели ее в пятницу 15 ноября 1532 года, нашли, что ее площадь «больше любой площади в Испании». Она была окружена высокой стеной, в которой было два проема, и в них вели городские улицы. Постройки были длинными, прочными, «высотой в три человеческих роста под соломенной крышей». «Они были, – продолжал далее королевский инспектор, – самыми совершенными из виденных нами». Двигаясь по королевской дороге дальше – за пределы современных границ Перу, в Эквадор, мы встретим все так же тщательно спланированные города. Тумипампа (в настоящее время Тумибамба, там, где сейчас вырос город с названием Куэнка) был «…построен во многом как и другие», как писал Сьеса де Леон в 1550 году. «На большой равнине… рядом с двумя небольшими реками… построен храм Солнца из камня, очень искусно обработанного. Одни камни большие, грубые и черные, а другие напоминают яшму. Некоторые индейцы говорят, что большая часть камней, из которых построены эти здания и храм Солнца, была привезена из большого города Куско… Дверные проемы многих домов были очень красивыми, раскрашенными в яркие цвета; а в некоторые камни были вправлены драгоценные жемчужины и изумруды, а стены храма Солнца и дворцов Инков с внутренней стороны были выложены тончайшими листами золота, на которых было много оттисков различных фигур. Крыши были сделаны из соломы, настолько хорошо уложенной, что никакой пожар не уничтожил бы их и они сохранились бы на многие годы…» План храмового города включал в себя дома для «более двухсот девственниц [которые были очень красивыми], посвятивших себя служению Солнцу. Рядом с храмами… располагалось много построек, которые использовались для расквартирования войск и в качестве складов, всегда заполненных до отказа». Кито, расположенный в конце оси Куско – Кито, в 480 км (по дороге) от города Тумибамба и в 2000 км от Куско, был одним из крупных городов. Здесь также – хотя окрестности Кито вплоть до 1492 года входили в империю инков не полностью – инки построили свои обычные города, причем гораздо раньше, чем подобные центры были построены в Европе. Город прекрасно функционировал и был «красиво сделан» даже в тот относительно короткий пятидесятилетний период, когда он входил в империю инков. | 
