Книга Шедевр, страница 1 – Элис Броуч

Авторы: А Б В Г Д Е Ж З И Й К Л М Н О П Р С Т У Ф Х Ч Ш Ы Э Ю Я
Книги: А Б В Г Д Е Ж З И Й К Л М Н О П Р С Т У Ф Х Ц Ч Ш Щ Ы Э Ю Я
Бесплатная онлайн библиотека LoveRead.me

Онлайн книга «Шедевр»

📃 Cтраница 1
Иллюстрация к книге — Шедевр [i_001.jpg]

Иллюстрации Келли Мерфи


Перевод Ольги Бухиной

и Галины Гимон

Посвящается Зои, Гарри и Грейс

Иллюстрация к книге — Шедевр [i_002.jpg]
Мы не смотрим на цветы: они слишком малы.
Нам вечно некогда, а цветы требуют времени.
И дружба тоже требует времени.
Джорджия О’Кифф
Иллюстрация к книге — Шедевр [i_003.jpg]

Домашняя катастрофа

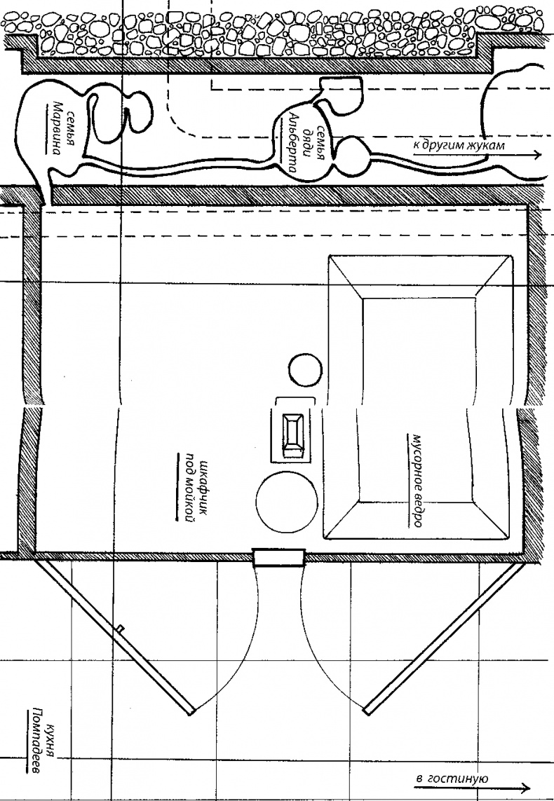
Семья Марвина жила в кухне под мойкой, в дальнем сыром углу. Труба слегка подтекала, поэтому штукатурка вокруг размягчилась и стала крошиться. Тут, прямо за стенкой, и прокопали три просторные комнаты. Отличное расположение, часто повторяли родители Марвина. Тепло — в стену вделаны трубы с горячей водой; сыро — значит, рыть легко; темно и плесенью пахнет — семейство Марвина всегда селилось в таких местах. А главное, под боком белое пластмассовое мусорное ведро, где всегда полно яблочных огрызков, хлебных крошек, луковой шелухи и фантиков от конфет. Есть чем подкрепиться!

Марвин и все его родственники были жуками. Блестящая черная спинка, шесть ног, средний жучиный размер — не намного больше изюминки. Они прекрасно видели в темноте, очень быстро бегали по столам и стенам, легко проскальзывали под закрытой дверью. Жили они в Нью-Йорке, в большой квартире человеческой семьи по фамилии Помпадей.

Как-то утром Марвин проснулся от непривычных звуков. Обычно его будило тихое шуршание родителей в соседней комнате и звяканье кастрюль в кухонной раковине. А сегодня он услышал яростный стук высоких каблуков миссис Помпадей и ее пронзительный крик. Он даже удивиться толком не успел, как в комнату заглянула Мама.

— Марвин! Идем скорее, милый!

Произошла катастрофа.

Иллюстрация к книге — Шедевр [i_004.jpg]

Марвин сполз с ватного шарика, служившего ему кроватью, и, еще не вполне проснувшись, поспешил за Мамой. В гостиной о чем-то разговаривали Папа, дядя Альберт и кузина Элен. Элен подбежала к Марвину и ухватила его за лапку.

— Миссис Помпадей потеряла контактную линзу! Уронила в раковину в ванной! Только ты умеешь плавать, тебе и доставать!

От неожиданности Марвин даже отпрянул, но кузина продолжала восторженно трещать:

— А вдруг ты утонешь?

Марвина такая перспектива не слишком обрадовала.

— Не утону, — спокойно возразил он. — Я хорошо плаваю.

Марвин вот уже месяц тренировался, используя в качестве бассейна наполненную водой крышку от банки. Он единственный во всей семье научился плавать, чему родители дивились — и, конечно, гордились сыном.

— У Марвина исключительная координация движений, он прекрасно владеет ножками, — частенько говаривала Мама. — Прямо как я, когда занималась балетом.

— Если он решил чего-то добиться, его не остановишь, — добавлял Папа. — Весь в отца!

Но сейчас это не утешало. Одно дело плавать в крышке, где воды всего чуть-чуть, совсем другое — в настоящей трубе под раковиной. Марвин нервно ползал по комнате.

— Ни за что! Он же еще ребенок! — сердито втолковывала Мама дяде Альберту. — Пусть вызывают водопроводчика!

Папа покачал головой.

— Слишком рискованно. Если водопроводчик сюда сунется, сразу поймет, что стенка сгнила. Скажет, что ее пора менять, и что тогда будет с домом Альберта и Эдит?

Дядя Альберт торопливо кивнул и повернулся к Марвину.

— Что скажешь, мой мальчик? Тебе придется нырнуть в сифон и найти эту контактную линзу. Сумеешь ее удержать?

Марвин колебался. Мама и Папа продолжали спорить.

— Сынок, — сказал наконец Папа. — Я бы сам пошел, не сомневайся, если бы умел плавать. — Вид у него был совсем несчастный.

Иллюстрация к книге — Шедевр [i_005.jpg]

— Марвин плавает лучше всех! — провозгласила Элен. — Но вдруг даже Марвин плавает недостаточно хорошо? В трубе полно воды. Неизвестно, как глубоко придется нырять. — Она сделала паузу для пущего эффекта и добавила: — Быть может, он не выберется на поверхность.

— Заткнись, Элен, — сказал дядя Альберт.

Марвин подтянул к себе арахисовую скорлупку (в бассейне она помогала ему держаться на воде) и глубоко вздохнул.

— Можно попробовать. Я буду осторожен.

— Тогда я иду с тобой, — решила Мама. — Послежу, чтоб ты не лез на рожон. Если будет хоть малейшая опасность, рисковать не станем.

И они отправились в ванную комнату Помпадеев: впереди дядя Альберт, за ним Мама, а за Мамой Марвин, неловко зажав арахисовый поплавок под одной из лапок.

Иллюстрация к книге — Шедевр [i_006.jpg]

Вниз по трубе

Путь до ванной комнаты занял немало времени. Сперва надо было выползти из-под мойки на свет. На кухне в высоком стульчике сидел малыш Уильям и колотил ложкой по тарелке, разбрасывая овсяные колечки по всему полу. В другое время жуки подождали бы в сторонке и, улучив момент, утащили бы штучку-другую на обед, но сегодня их ждало более важное дело. Они быстренько пробежали вдоль плинтуса до двери в гостиную и начали утомительное путешествие по темно-синему восточному ковру. Одно хорошо — на темном фоне их почти невозможно заметить.

Всю дорогу до ванной Марвин слышал, как мистер и миссис Помпадей орут друг на друга.

— Не понимаю, почему бы тебе просто не разобрать сифон, — громко жаловалась миссис Помпадей. — Уверена, Карл давно бы так и сделал.

Карл был ее первым мужем.

— Тебе надо, ты и разбирай! Затопи хоть всю ванную. Обойдется дороже, чем твоя дурацкая линза! — Кипя от злости, мистер Помпадей двинулся к телефону. — Вызову водопроводчика.

Иллюстрация к книге — Шедевр [i_007.jpg]

— Прелестно! Жди его теперь целый день! Мне через двадцать минут на работу, а без контактных линз я даже до двери не дойду!

Джеймс, сын миссис Помпадей от первого брака, вошел в комнату. Десятилетний мальчишка, тощий, с большими ногами и россыпью веснушек на щеках. Завтра ему исполнялось одиннадцать, и Марвин с семьей уже подумывали, что бы такого приятного для него сделать — Джеймс нравился им гораздо больше, чем остальные Помпадей. Джеймс был мальчик спокойный и разумный, не склонный к резким движениям и неожиданным выкрикам.

Вход
Поиск по сайту
Ищем:
Календарь