Онлайн книга «Странный дом»
|
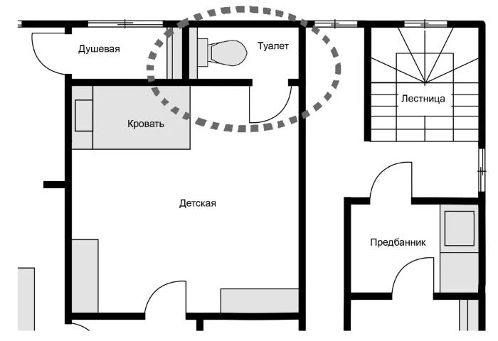
Далее идет запись нашего с Курихарой разговора. Автор:Курихара, привет! Спасибо, что нашел для меня время. Курихара:Да ладно. По поводу твоего плана… Автор:Ты смог понять, зачем нужно это пустое пространство, в которое невозможно попасть? ![]() Курихара:Нет. Единственное, что я могу сказать с полной уверенностью, – оно появилось не в результате ошибки проектировщиков. Автор:Точно? Курихара:Да, это понятно из плана: со стороны кухни построили две дополнительные стены. Без них «загадочное пространство» не возникло бы, а сама кухня была бы просторнее. Если ради дополнительных стен пожертвовали площадью кухни, значит, пустое пространство было необходимо. Автор:Ясно. Зачем же оно могло понадобиться? Курихара:Вероятно, там планировали дополнительное помещение для хранения. Например, если установить двери со стороны гостиной, получится кладовка. А если расположить их со стороны кухни, внутри можно установить большой сервант. Наверное, в процессе строительства хозяева передумали, или им не хватило денег. Так или иначе, они отказались от идеи установить двери. ![]() ![]() Автор:Понятно. А планировку менять было уже поздно, поэтому они просто оставили пустое пространство как есть, так получается? Курихара:Да, это самое логичное объяснение. Автор:Значит, ни к каким оккультным практикам оно отношения не имеет. Курихара:Получается, так. Однако… Неожиданно я уловил в голосе Курихары напряжение. Курихара:Для кого строили этот дом? Автор:Для прошлых владельцев: семейной пары с маленьким ребенком. Всего три человека. Курихара:Маленьким? Сколько примерно лет? Автор:Таких подробностей я не знаю… А что, что-то не так? Второй этаж ![]() ![]() Курихара:Честно говоря, как только я увидел план, то сразу подумал, что этот дом какой-то странный. Автор:Вот как? Тебя смутило что-то еще, кроме загадочного пространства? Курихара:Да, планировка второго этажа. Взгляни на детскую. Ничего не замечаешь? Автор:Хм-м-м… Что, две двери?.. В детскую ведет коридор, и с обоих его концов установлено по двери. Курихара:Верно. И расположен он тоже странно. Допустим, ты поднялся на второй этаж. Чтобы попасть в детскую, тебе придется сделать крюк и обойти пол-этажа. Ужасно неудобно, тебе не кажется? Автор:И правда. Курихара:А еще в этой комнате нет ни одного окна. ![]() Действительно, на плане в стенах детской я не увидел ни одного значка, обозначающего окно. Курихара:Обычно родители, наоборот, просят проектировщиков продумать планировку таким образом, чтобы в детскую попадало как можно больше солнечного света. А чтобы ребенку сделали комнату совсем без окон… Такого я еще никогда не видел. Автор:Может, этому есть какое-то объяснение? Например, у ребенка кожное заболевание, и солнечный свет ему вреден. Курихара:В таком случае окна достаточно просто занавесить. Совсем отказываться от них – это странно, даже ненормально. Автор:Ясно. Курихара:К тому же в этой комнате есть еще одна непонятная деталь. Посмотри на туалет. Судя по расположению двери, в него можно попасть только из детской. Автор:И правда. Получается, у ребенка был отдельный туалет? Курихара:Похоже на то. ![]() Автор:Комната без окон и с отдельным туалетом. А чтобы войти в нее, нужно пройти через коридор, по обеим концам которого установлены двери… Звучит как описание тюремной камеры. Курихара:Да, даже для родителей, склонных к гиперопеке, это перебор. От планировки так и веет желанием полностью контролировать ребенка. Может быть, его даже держали в детской взаперти. |
![Иллюстрация к книге — Странный дом [i_007.webp] Иллюстрация к книге — Странный дом [i_007.webp]](img/book_covers/117/117524/i_007.webp)
![Иллюстрация к книге — Странный дом [i_008.webp] Иллюстрация к книге — Странный дом [i_008.webp]](img/book_covers/117/117524/i_008.webp)
![Иллюстрация к книге — Странный дом [i_009.webp] Иллюстрация к книге — Странный дом [i_009.webp]](img/book_covers/117/117524/i_009.webp)
![Иллюстрация к книге — Странный дом [i_010.webp] Иллюстрация к книге — Странный дом [i_010.webp]](img/book_covers/117/117524/i_010.webp)
![Иллюстрация к книге — Странный дом [i_011.webp] Иллюстрация к книге — Странный дом [i_011.webp]](img/book_covers/117/117524/i_011.webp)
![Иллюстрация к книге — Странный дом [i_012.webp] Иллюстрация к книге — Странный дом [i_012.webp]](img/book_covers/117/117524/i_012.webp)
![Иллюстрация к книге — Странный дом [i_013.webp] Иллюстрация к книге — Странный дом [i_013.webp]](img/book_covers/117/117524/i_013.webp)