Онлайн книга «Странный дом»
|
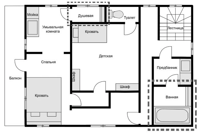
Автор:Значит, ребенок подвергался жестокому обращению… Курихара:Не исключено. Скажу больше: по-моему, родители не хотели, чтобы их ребенка кто-то увидел. Взгляни еще раз на план второго этажа. Тебе не кажется, что все комнаты расположены так, чтобы скрыть наличие детской? К тому же в ней нет окон. Получается, увидеть ребенка с улицы было невозможно. Можно предположить, что родители держали его под замком и скрывали от окружающих сам факт его существования. Второй этаж ![]() Автор:Но зачем? Курихара:Не знаю. Но судя по планировке, в этом доме творилось что-то ужасное. Две ванные Курихара:Кстати, рядом с детской расположена спальня… Автор:Ты про комнату с двуспальной кроватью? Наверное, это спальня родителей, да? ![]() Курихара:Да, скорее всего. Она просторная, в отличие от детской. И окон там много. Мне вспомнились, как Янаока назвал этот дом «светлым и просторным». Курихара:Но, честно говоря, в ней меня тоже кое-что смущает. В верхней части плана изображена душевая. Получается, умывальная комната играет роль предбанника[1], но при этом она полностью просматривается из спальни. Автор:И правда, двери-то нет. Курихара:Согласись, в этом мало приятного: раздеваться или выходить из душа, пока на тебя кто-то смотрит. Пусть даже муж или жена. Может, конечно, эти двое были настолько близки… Какая-то жуткая картина вырисовывается: родители не чают души друг в друге, но при этом держат собственного ребенка под замком. Хотя, может быть, я накручиваю. Автор:Ну да… Ой, ого! Курихара:Что такое? Автор:Кроме душевой на втором этаже есть еще ванная комната. Это ведь тоже необычно? Второй этаж ![]() Курихара:Ну, не могу сказать, что это что-то из ряда вон, но такая планировка действительно встречается крайне редко. Кстати, в ванной тоже ни единого окна. Зато в душевой есть одно, почти во всю стену. Автор:И правда. Выходит, все-таки этот дом какой-то жутковатый… Как ты считаешь, лучше его не покупать? Курихара:Конечно, нельзя делать однозначные выводы на основе одной только планировки, но… На месте твоего знакомого я бы поискал другой вариант. Я поблагодарил Курихару и положил трубку. А потом снова принялся разглядывать план и живо представил ребенка, заточенного в комнате без окон, в то время как родители безмятежно спят в своей кровати. Второй этаж ![]() Первый этаж ![]() Затем я решил сравнить планы первого и второго этажей. Если смотреть только на первый этаж, то можно решить, что это совершенно обычный дом. Не считая, конечно, загадочного пустого пространства. Кстати о нем… Курихара предположил, что это просто дополнительное помещение для хранения, в которое не стали проделывать дверь. Но что, если он ошибся? Тут у меня возникла одна догадка. Совершенно дурацкая. Повторяя про себя: «Да ничего это мне не даст», я наложил друг на друга планы первого и второго этажей. Удивительно, но в интересующем меня месте детали планов совпали идеально. Простая случайность? Или… Загадочное пустое пространство Я снова позвонил Курихаре. Автор:Прости, что опять тебя дергаю. Курихара:Да ладно, ничего страшного. Что-то случилось? Автор:Мне все-таки никак не дает покоя это пустое пространство. Я подумал, может, оно как-то связано с планировкой второго этажа? Курихара:Вот как? Автор:Поэтому я наложил друг на друга планы первого и второго этажей… и оказалось, что пустое пространство тянется ровно от угла детской к углу ванной. Как будто соединяет эти два помещения. |
![Иллюстрация к книге — Странный дом [i_014.webp] Иллюстрация к книге — Странный дом [i_014.webp]](img/book_covers/117/117524/i_014.webp)
![Иллюстрация к книге — Странный дом [i_015.webp] Иллюстрация к книге — Странный дом [i_015.webp]](img/book_covers/117/117524/i_015.webp)
![Иллюстрация к книге — Странный дом [i_016.webp] Иллюстрация к книге — Странный дом [i_016.webp]](img/book_covers/117/117524/i_016.webp)
![Иллюстрация к книге — Странный дом [i_017.webp] Иллюстрация к книге — Странный дом [i_017.webp]](img/book_covers/117/117524/i_017.webp)
![Иллюстрация к книге — Странный дом [i_018.webp] Иллюстрация к книге — Странный дом [i_018.webp]](img/book_covers/117/117524/i_018.webp)